

DLY5(EZE系列)牙嵌式有滑环电磁离合器是一种用于机械传动系统中,借助电磁力操作,使旋转运动的驱动侧部分与从动侧部分相结合或分离,从而实现动力和运动传递的执行元件。
立即咨询 在线询价


DLY5(EZE系列)牙嵌式有滑环电磁离合器是一种用于机械传动系统中,借助电磁力操作,使旋转运动的驱动侧部分与从动侧部分相结合或分离,从而实现动力和运动传递的执行元件。
离合器的标准工作电压为直流24伏.在一般情况下,只需采用开关、按钮、接触器、行程开关等普通电器元件组成的简单电路,就能方便的对其实现自动、远程控制,从而满足机械传动系统的变速、换向、起动及定位等各种要求。
该系列离合器是借助端面细牙的啮合来传递力矩的,因此与相同规格的摩擦片式离合器相比,体积小,无摩擦发热,断电后完全分离,无空载力矩,而且既能适应于湿式工作也能适用于干式工作。离合器为刚性结合,它只能在转速较低的条件下结合,若在静止时或在相对转速同步的情况下结合则最为适宜。
离合器在下列条件下能可靠的工作:
1.周围空气温度为-5℃--+40℃。
2.在无爆炸危险的介质中,且介质中无足以腐蚀金属和破坏绝缘的气体及导电尘埃。
3.离合器需在有润滑油的条件下工作。
4.离合器线圈的电压波动不超过+5%和-15%的额定电压。
5.离合器安装地点的海拔不超过2000米。
主要性能参数
规格 | 额定传递力矩 | 额定电压: | 线圈消耗功率 (20℃) | 允许最高结合转速 | 允许最高转速 | 重量 |
2A | 20 | 24 | 17 | 60 | 5500 | 0.9 |
5A | 50 | 24 | 22 | 50 | 4500 | 1.5 |
10A | 200 | 24 | 28 | 30 | 4000 | 2.3 |
16A | 160 | 24 | 32 | 30 | 3500 | 3.0 |
25A | 250 | 24 | 44 | 20 | 3300 | 4.3 |
40A | 400 | 24 | 58 | 10 | 3000 | 6.2 |
63A | 630 | 24 | 60 | 相对静止 | 2500 | 8.9 |
100A | 1000 | 24 | 73 | 相对静止 | 2200 | 14.0 |
160A | 1600 | 24 | 87 | 相对静止 | 2000 | 20.0 |
250A | 2500 | 24 | 85 | 相对静止 | 1700 | 34.0 |
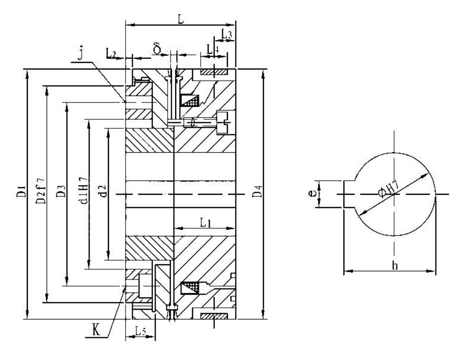
安装示意图


外形与安装尺寸
规格Size | 径向尺寸 Radil Demensions | 轴向尺寸 Axial Demensions | 电刷型号 | ||||||||||||||||
D1 | D2 | D3 | D4 | d1 | d2 | ф | h | e | j | k | L | L1 | L2 | L3 | L4 | L5 | δ | ||
2A | 75 | 65 | 55 | 75 | 45 | 39.5 | 25 | 27.60+0.14 | 80+0.03 | 2×4 | 4-M4 | 33 | 18.6 | 1.5 | 6.5 | 8 | 8 | 0.4 |
|
5A | 90 | 75 | 64 | 90 | 53 | 49 | 30 | 32.60+0.17 | 80+0.03 | 2×5 | 4-M5 | 40 | 24.1 | 2 | 6.5 | 8 | 9 | 0.5 | |
10A | 105 | 85 | 75 | 105 | 65 | 57 | 40 | 42.90+0.17 | 120+0.035 | 2×5 | 4-M5 | 45 | 26.6 | 2 | 6.5 | 8 | 10.5 | 0.5 | |
16A | 115 | 100 | 85 | 115 | 70 | 62 | 45 | 43.80+0.17 | 140+0.035 | 2×6 | 4-M6 | 50 | 29.6 | 2 | 6.5 | 8 | 12.5 | 0.5 | |
25A | 125 | 105 | 90 | 125 | 75 | 68 | 50 | 53.60+0.2 | 160+0.035 | 2×8 | 4-M6 | 58 | 33. | 2.5 | 6.5 | 8 | 15.5 | 0.6 | |
40A | 140 | 115 | 100 | 140 | 85 | 74 | 60 | 640+0.4 | 180+0.035 | 2×10 | 6-M6 | 67 | 40 | 2.5 | 7.5 | 10 | 17 | 0.6 | |
63A | 160 | 130 | 115 | 160 | 95 | 85 | 70 | 74.30+0.2 | 200+0.045 | 2×10 | 6-M8 | 75 | 42 | 3 | 7.5 | 10 | 19.5 | 0.7 | |
100A | 185 | 155 | 135 | 182 | 115 | 97 | 70 | 74.30+0.2 | 200+0.045 | 2×12 | 6-M8 | 85 | 49 | 3 | 7.5 | 10 | 21 | 0.7 | |
160A | 215 | 180 | l58 | 215 | 130 | 114 | 85 | 95.80+0.4 | 22js9 | 2×12 | 6-M10 | 100 | 58 | 3.5 | 8.5 | 10 | 25.5 | 0.9 | DS-010 |
250A | 250 | 210 | 190 | 250 | 150 | 130 | 85 | 95.80+0.4 | 22js9 | 2×12 | 6-M12 | 115 | 66 | 3.5 | 8.5 | 10 | 26 | 0.9 | |